Uffici di confine

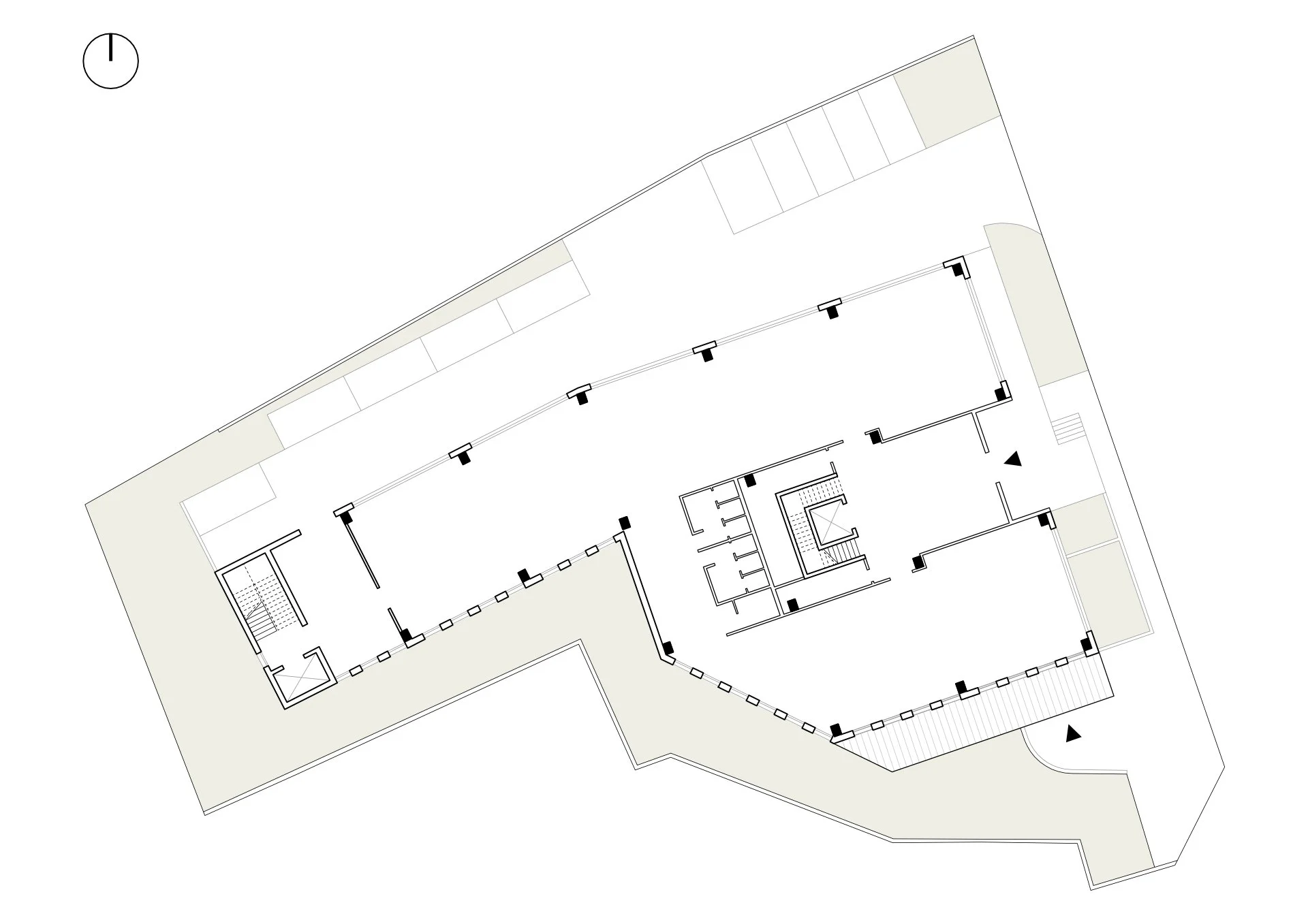
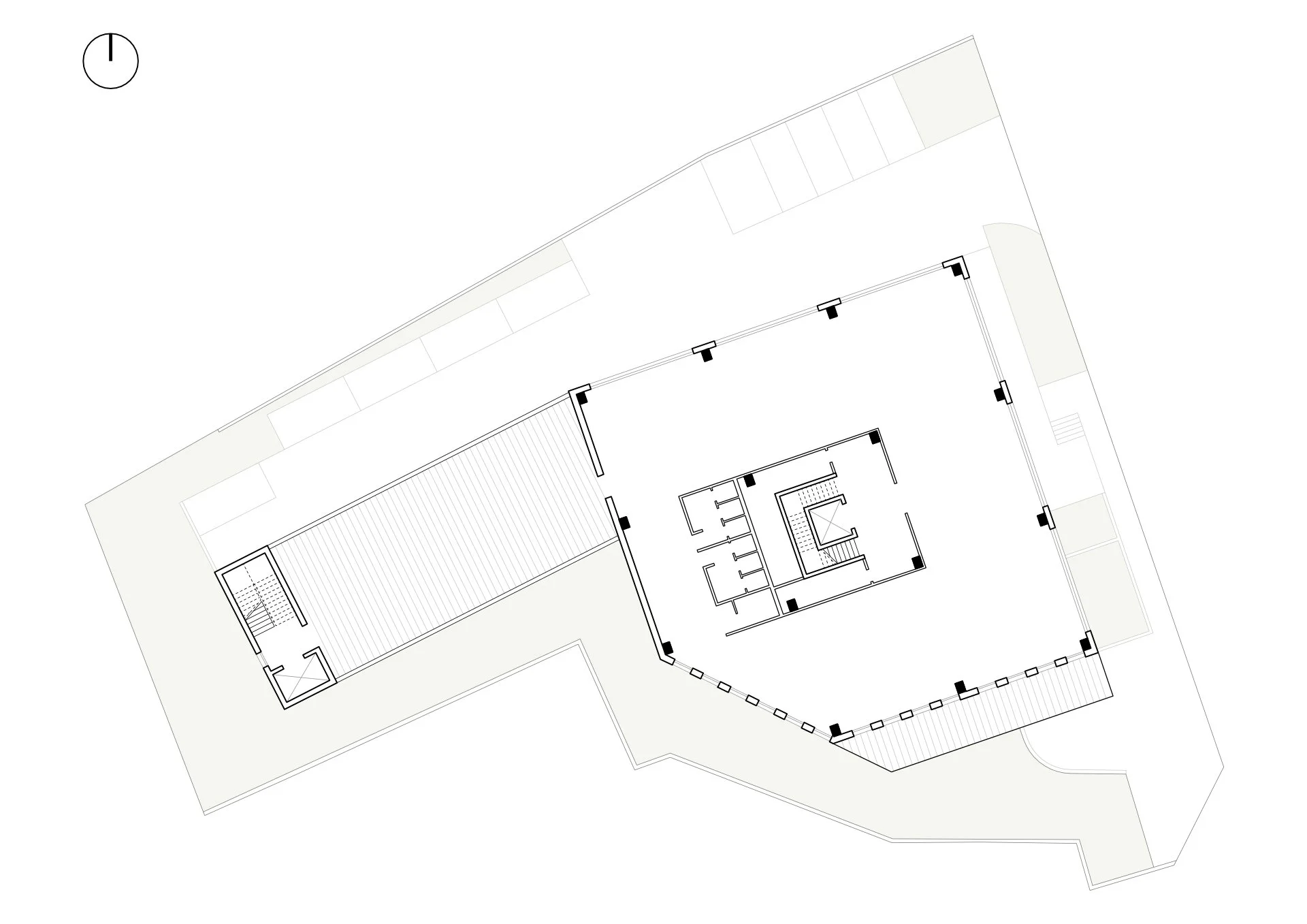
Questo progetto di nuova costruzione per uffici a Stabio si inserisce in un contesto industriale densamente costruito. La sfida principale è stata ottimizzare lo spazio su un lotto complesso attraverso una griglia strutturale rigida, adattata con linee oblique. L'edificio presenta spazi interni flessibili, progettati per adattarsi a future esigenze lavorative. La facciata, modulare e ripetitiva, non solo crea un forte impatto visivo ma ha l’intento di scandire il tempo in un contesto dominato dalle automobili. Il risultato è un edificio facilmente riconoscibile dalla strada, che dialoga perfettamente con il ritmo frenetico di questo comune di confine tra Svizzera e Italia.

Stabio, CH

Anno
In corso

Indietro
Indietro

22.28_Padova

Avanti
Avanti

24.35_Jesolo